Green Vets is extending
- News
After a long planning and design process, the building work has finally started.
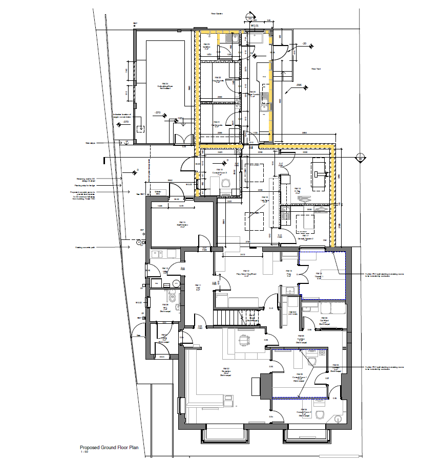
Over the next 26 weeks, Vine House construction will build an extension to the back of our existing building that will give us a dedicated dental theatre, a new imaging suite for X-rays and ultrasound exams, and a third consult room. We will also have more kennelling space for hospitalised patients, and a larger prep room.
Apart from the occasional skip lorry taking away rubble, and the inevitable building noise, we have tried to keep disruption to our clients to a minimum. We will be operating as normal during the building works. We apologise for any inconvenience, but we promise that when it is all done, the results will allow us to provide even better care for our patients.


